Layout Survey Plan and Marking

Image
Layout Survey Plan and Marking
Image
Layout Survey Plan and Marking
Image
Layout Survey Plan and Marking
Image
Layout Survey Plan and Marking
Image
Layout Survey Plan and Marking
Image
Layout Survey Plan and Marking
Image
Layout Survey Plan and Marking
Image
Layout Survey Plan and Marking
Image
Layout Survey Plan and Marking
Image
Layout Survey Plan and Marking
Image
Layout Survey Plan and Marking
Image
Layout Survey Plan and Marking

Layout Survey Plan and Marking

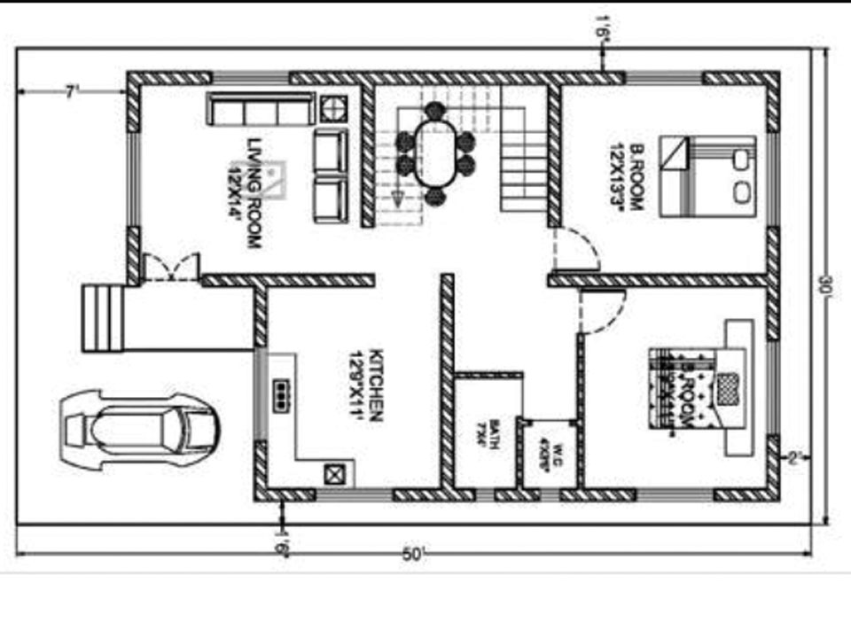
Construction Process Organized :

Site Layout Survey, is the process of interpreting construction plans and marking the location of proposed new structures such as roads or buildings. Construction staking is performed to ensure a project is built according to engineering design plans.

Site layout plans are prepared by contractors as part of their mobilisation activities before work on site commences.

Our Professional Land Surveyors (PLS) and land survey field crews have decades of experience with field surveying and office mapping on all property types in support of transactions, construction and development.

Land surveying plays an integral role in the process of site development from planning through construction. Partner's team of professional land surveyors can provide a wide variety of surveys for any stage in your project.

You're in Good Hands.

Five Points that define Our Reliability.
  • Market Leader since 2015
  • Positive Results within Deadlines
  • 100% Reliability & Guarantee
  • Dedicated Professional Team of 20+
  • Unmatched After Project Completion Support